Comentari guardat!
Només ho veuràs tú
Comment saved!
Afegeix la teva valoració i/o un comentari per aquest anunci. Només el veuràs tu

Pis 91m2 amb calefacció aparcament a Vilamarina Viladecans

  • des de 91 m2
  • 3 hab.
  • 2 banys
  • 4.198 €/m2
CAL BLAS
Pertany a la promoció

CAL BLAS

Esta promoción tiene 13 tipos de habitatges Veure promoció

Nueva Promoción de Viviendas en Viladecans
Descubre esta exclusiva promoción de 19 viviendas de obra nueva ubicada en una de las
zonas más consolidadas y bien comunicadas de Viladecans. El edificio se compone de
viviendas modernas, plazas de aparcamiento y trasteros, diseñados para ofrecer el máximo
confort, eficiencia y estilo. Situado en una ubicación inmejorable, próximo al Parque
Tecnológico de Viladecans, y cerca de la estación de Renfe de la población, línea de autobuses
y conexiones con la autopista C-32. Esta promoción disfruta de una excelente comunicación
con transporte público, proximidad a servicios, zonas verdes, centros educativos y comercios.
Ideal para familias, parejas o inversores que buscan calidad de vida a solo unos minutos de
Barcelona. La promoción consta de viviendas de 2 y 3 dormitorios con acabados de alta
calidad. Plazas de aparcamiento y trasteros disponibles en el mismo edificio. Construcción
moderna con estructura de hormigón armado y aislamiento térmico y acústico. Ascensor de
gran capacidad incluyendo instalación aerotérmica de alta eficiencia, con una calificación
energética AA, garantizando la máxima eficiencia y ahorro energético.
Memoria de calidades destacada
? Estructura y fachada: Hormigón armado, fachada ventilada con sistema SATE y
acabados cerámicos.
? Cubiertas transitables y ajardinadas, con sistema de impermeabilización bicapa.
? Carpintería exterior con rotura de puente térmico y doble acristalamiento.
? Climatización mediante aerotermia, con sistemas individuales por vivienda.
? Instalación completa de telecomunicaciones y preinstalación para coche eléctrico.
? Iluminación LED de bajo consumo en zonas comunes.
? Cocinas equipadas con mobiliario de diseño y electrodomésticos Balay (placa de
inducción, campana, horno y microondas).
? Baños modernos con sanitarios Roca y griferías de diseño (Hansgrohe y Stillo).
? Pavimentos de parquet laminado y gres porcelánico en zonas húmedas.
? Puertas interiores lacadas en blanco, de diseño moderno.
¿Quieres más información?
No pierdas la oportunidad de vivir o invertir en una de las zonas con más proyección del Baix
Llobregat.
Contáctanos para planos, precios y visitas personalizadas.

última modificació

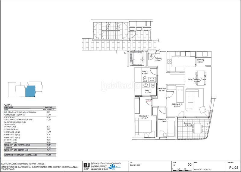
Distribució

  • 3 habitacions
  • Superfície 91 m2
  • Terrassa 9 m2
  • 2 banys
  • Cuina Tipus Office: No
  • Traster

Característiques generals

  • Calefacció
  • Plaça aparcament
  • Aire Acondicionat
  • Certificat energètic :
    Consumo:
    A
    26 kW h m2 / año
    Emisiones:
    A
    4 kg CO2 m2 / año

Equipament comunitari

  • Ascensor
Anunci: 2415004301564

Ubicació

Vilamarina

Navega pel mapa fent clic a sobre
382.000 € Preu de l´anunci
2.913 €/m2€/m2 población
4.198 €/m2€/m2 de l´anunci
Veure evolució €/m2 a Viladecans
T´avisem quan tinguem un anunci com aquest? Crea la teva alerta i nosaltres t´avisarem per correu electrònic quan hi hagin nous anuncis o siguin modificats
 

Pertany a la promoció CAL BLAS

Viladecans
Promoción CAL BLAS Viladecans des de 259.000 € Veure promoció
Altres tipus d´habitatge d´aquesta promoció

Contactar merkapiso.com

Referència de l´anunci habitaclia/1º3ª:

Veuràs el telèfon després d´enviar el contacte a l´anunciant perquè et pugui atendre.
Veuràs el telèfon després de contactar
Enviant…