Comentari guardat!
Només ho veuràs tú
Comment saved!
Afegeix la teva valoració i/o un comentari per aquest anunci. Només el veuràs tu

Pis a Tomás Maestre Manga del Mar Menor (La)

  • 109 m2
  • 3 hab.
  • 2 banys
  • 2.483 €/m2

Ubicado en la exclusiva zona de La Manga del Mar Menor, este conjunto residencial ofrece una oportunidad única para disfrutar de la vida junto al mar. Con 25 adosados disponibles, cada uno diseñado para maximizar el confort y la funcionalidad, los residentes pueden disfrutar de impresionantes vistas al mar desde la primera línea de playa. La proximidad al mar, a solo un metro de distancia, asegura que el sonido de las olas sea una constante en el día a día. Esta ubicación privilegiada no solo ofrece vistas inigualables, sino también un acceso directo a las playas de arena dorada de la región.

EXTERIORES

Los adosados cuentan con espacios exteriores diseñados para el disfrute y la relajación. Cada vivienda dispone de un jardín privado, ideal para crear un oasis personal al aire libre. Además, las terrazas amplias permiten disfrutar de las vistas al mar y del clima mediterráneo durante todo el año. Para aquellos que buscan un espacio adicional al aire libre, los solariums ofrecen un lugar perfecto para tomar el sol o disfrutar de una cena al atardecer. La comunidad también ofrece un solarium compartido, proporcionando un espacio adicional para socializar y disfrutar del entorno.

INTERIORES

El interior de los adosados está diseñado para ofrecer comodidad y estilo. Con opciones de 2 o 3 dormitorios, cada vivienda está equipada con armarios empotrados que optimizan el espacio de almacenamiento. Los baños, todos con 2 unidades, están diseñados para ofrecer funcionalidad y confort. El suelo de baldosas añade un toque moderno y es fácil de mantener, ideal para el estilo de vida junto al mar. Además, las viviendas cuentan con preinstalación de aire acondicionado, asegurando que el hogar se mantenga fresco durante los meses más cálidos.

ZONAS COMUNES

Los residentes tienen acceso a un garaje comunitario, proporcionando seguridad y comodidad para el estacionamiento de vehículos. Además, el solarium comunitario es un espacio ideal para disfrutar del sol y las vistas panorámicas del entorno. Estas zonas comunes están diseñadas para fomentar un sentido de comunidad y ofrecer espacios adicionales para el disfrute de todos los residentes.

última modificació

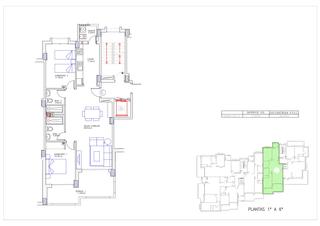
Distribució

  • 3 habitacions
  • Superfície 109 m2
  • 2 banys

Característiques generals

  • Certificat energètic :
    Consumo:
    G
    999 kW h m2 / año
    Emisiones:
    G
    999 kg CO2 m2 / año

Equipament comunitari

  • Ascensor
Anunci: 56836000001373

Ubicació

Tomás Maestre Calle Pedaneo Vicente Molina

Navega pel mapa fent clic a sobre
270.632 € Preu de l´anunci
2.844 €/m2€/m2 población
2.483 €/m2€/m2 de l´anunci
13% més econòmic que la mitja*
Quant t´agradaria pagar?
Veure evolució €/m2 a Manga del Mar Menor (La)
T´avisem quan tinguem un anunci com aquest? Crea la teva alerta i nosaltres t´avisarem per correu electrònic quan hi hagin nous anuncis o siguin modificats
 

Contactar 5 Real Estate

Referència de l´anunci habitaclia/51670307-01:

Veuràs el telèfon després d´enviar el contacte a l´anunciant perquè et pugui atendre.
Veuràs el telèfon després de contactar
Enviant…