Comentari guardat!
Només ho veuràs tú
Comment saved!
Afegeix la teva valoració i/o un comentari per aquest anunci. Només el veuràs tu
112.000 € Avisa´m si baixa
ha baixat 8.000 €

Pis amb calefacció a Zona Alta Ponferrada

  • 100 m2
  • 3 hab.
  • 2 banys
  • 1.120 €/m2

Piso NUEVO EN ZONA ALTA

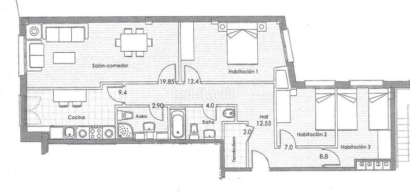
Piso en Zona Alta distribuido en cocina, salón, 3 habitaciones y 2 baños.
Tendedero y anejo-trastero.
Plaza de garaje opcional
Piso nuevo a estrenar, con materiales de buena calidad.
Dispone de ascensor.
Piso totalmente exterior, muy luminoso y ello facilita la entrada de sol por todas las partes a lo largo del día.
Obra nueva situada en una de las partes de la zona alta más tranquilas de Ponferrada, sin ruidos, bullicios...

Demanar més dades a l´anunciant

última modificació

Distribució

  • 3 habitacions
  • Superfície 100 m2
  • 2 banys
  • Traster

Característiques generals

  • Calefacció
  • Planta número 2
  • Any construcció 2018
  • A prop de transport públic
  • Certificat energètic :
    Consumo:
    G
    999 kW h m2 / año
    Emisiones:
    G
    999 kg CO2 m2 / año

Equipament comunitari

  • Ascensor
Anunci: 35199000000109

Ubicació

Zona Alta

Navega pel mapa fent clic a sobre
112.000 € Preu de l´anunci
1.047 €/m2€/m2 población
1.120 €/m2€/m2 de l´anunci
Veure evolució €/m2 a Ponferrada
T´avisem quan tinguem un anunci com aquest? Crea la teva alerta i nosaltres t´avisarem per correu electrònic quan hi hagin nous anuncis o siguin modificats
 

Contactar BELS INMOBILIARIA

Referència de l´anunci habitaclia/BELS00103:

Veuràs el telèfon després d´enviar el contacte a l´anunciant perquè et pugui atendre.
Veuràs el telèfon després de contactar
Enviant…