Comentari guardat!
Només ho veuràs tú
Comment saved!
Afegeix la teva valoració i/o un comentari per aquest anunci. Només el veuràs tu
Oportunitat 269.000 € Avisa´m si baixa

Planta baixa amb calefacció a Monte Alto - Zalaeta - Atocha Coruña (A)

Rúa Gerión

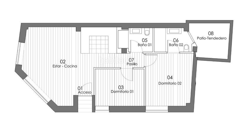
  • 85 m2
  • 2 hab.
  • 2 banys
  • 3.165 €/m2

Fantástico piso a ESTRENAR en MONTE ALTO.

Os presentamos esta amplia planta baja de 78m2 más 6m2 de terraza, con preciosos acabados a estrenar, que cuenta con dos dormitorios uno de ellos con baño en suite y acceso directo a un patio interior; un segundo cuarto de baño y un amplio salón comedor exterior con cocina americana, completamente equipada y amueblada con altas calidades.

Entre sus acabados, suelos de tarima AC4,ventanas climalit de 4+4,calefacción eléctrica individual, armarios empotrados suelo-techo, acumulador de agua 100 litros, electrodomésticos TEKA y lavavajillas empotrado.

En una de las zonas más demandas del momento con todos los servicios al alcance; comercios, supermercados, centros deportivos y educativos, paradas de autobús… y que además está a pocos metros de las playas de Matadero y Orzán.

(Con la posibilidad de negociar la compra de algún mueble, no incluídos en el precio de venta)

¿Es lo que buscas?

Nuestro lema es la excelencia y trabajamos día a día para mantenerla. Hacemos la experiencia de compra o venta de un inmueble única para cada uno de nuestros clientes y propietarios. Bienvenidos a la singularidad, bienvenidos a Incor.

OFRECEMOS SOLUCIONES, NO PROMESAS
Encuentra más en

última modificació

Distribució

  • 2 habitacions
  • Superfície 85 m2
  • 2 banys

Característiques generals

  • Calefacció
  • Sense plaça aparcament
  • Sense aire acondicionat
  • Any construcció 2025
  • Certificat energètic :
    Consumo:
    G
    999 kW h m2 / año
    Emisiones:
    G
    999 kg CO2 m2 / año

Equipament comunitari

  • Sense ascensor
Anunci: 34045000001095

Ubicació

Monte Alto - Zalaeta - Atocha Rúa Gerión

Navega pel mapa fent clic a sobre
269.000 € Preu de l´anunci
4.502 €/m2€/m2 distrito
3.165 €/m2€/m2 de l´anunci
30% més econòmic que la mitja*
Veure evolució €/m2 a Coruña (A) (Monte Alto - Zalaeta - Atocha)
T´avisem quan tinguem un anunci com aquest? Crea la teva alerta i nosaltres t´avisarem per correu electrònic quan hi hagin nous anuncis o siguin modificats
 

Contactar INCOR

Referència de l´anunci habitaclia/E1878:

Veuràs el telèfon després d´enviar el contacte a l´anunciant perquè et pugui atendre.
Veuràs el telèfon després de contactar
Enviant…