Favorito y comentario
Terreny residencial a Cap Martí - El Tossalet - Pinomar Xàbia
Característiques principals
- 2.600 m2
- 327 €/m2
Informació detallada
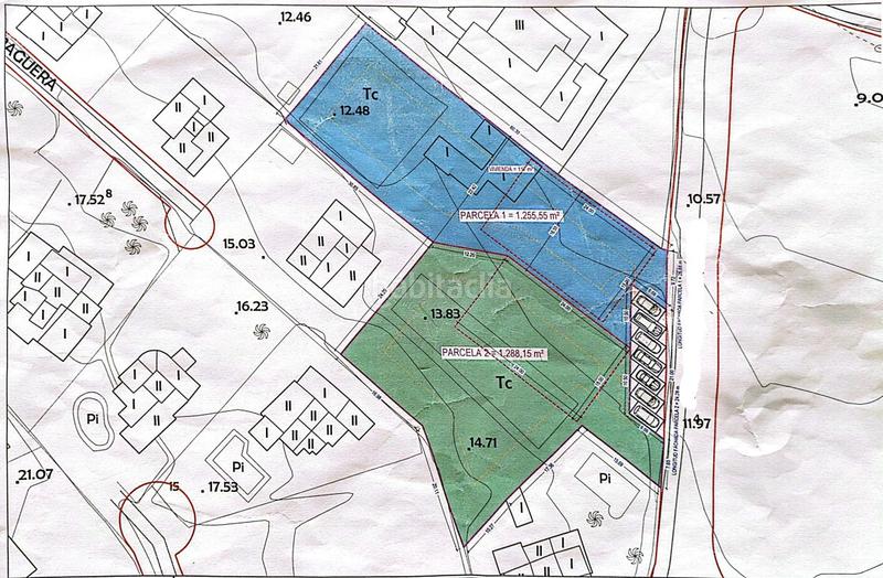
Interesante para inversores - Parcela de 2.600 m2 con casa y posibilidad de división en dos parcelas edificables
Esta parcela se encuentra a muy poca distancia de la playa de arena de Jávea y ofrece una excelente oportunidad de inversión. La parcela se puede dividir perfectamente en dos parcelas edificables independientes de unos 1.300 m2 cada una, aptas para realizar dos villas de lujo.
Actualmente, la parcela contiene una villa de una sola planta con una superficie construida de 152 m². La propiedad cuenta con un salón con cocina abierta, un segundo salón-comedor con cocina cerrada, tres dormitorios, dos baños y un patio con trastero.
Esta parcela se encuentra a poca distancia de la playa de arena de Jávea y goza de una excelente ubicación cerca de todos los servicios. Supermercados, restaurantes, consultas médicas, instalaciones deportivas y otras necesidades diarias se encuentran a poca distancia. Esta ubicación combina la privacidad con la comodidad de una ubicación céntrica.
última modificació
Distribució
- Superfície 2600 m2
Galeria
Ubicació
Cap Martí - El Tossalet - Pinomar
