Comentari guardat!
Només ho veuràs tú
Comment saved!
Afegeix la teva valoració i/o un comentari per aquest anunci. Només el veuràs tu

Terreny residencial a San José-Los Metales Sagunt

  • 161 m2
  • 1.118 €/m2

Terreno de 161 m² en Venta en Puerto de Sagunto: Una Oportunidad de Inversión Única

Descubre una de las zonas con mayor proyección de futuro en la costa valenciana. Puerto de Sagunto no solo ofrece un estilo de vida inmejorable, con playas de primera calidad y una excelente conexión con Valencia, sino que también se está consolidando como un epicentro de crecimiento económico. La llegada de grandes proyectos como la gigafactoría de Volkswagen ha disparado la demanda de vivienda y la revalorización del suelo, convirtiendo esta zona en un lugar clave para invertir.

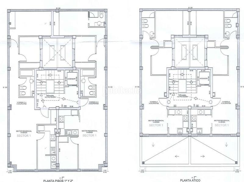
Te ofrecemos una parcela de 161 m2 con un proyecto ya definido para un edificio de 8 viviendas, que incluye un sótano para trasteros (158,50 m² construidos) y plantas baja, primera, segunda y ático para las viviendas. Aunque el proyecto original es de 2007, esto representa una gran ventaja: te da la libertad de actualizarlo por completo, adaptándolo a las normativas y las tendencias arquitectónicas actuales para maximizar su rentabilidad.

Esta no es solo la compra de un terreno, es la oportunidad de capitalizar el crecimiento de una ciudad en plena expansión. **No dejes pasar esta inversión estratégica. Contáctanos para recibir más información y dar el primer paso hacia tu próximo gran proyecto en Puerto de Sagunto.

La oferta está sujeta a cambios de precio o retirada del mercado sin previo aviso. Este anuncio en su conjunto, incluyendo textos, fotos, imágenes o cualquier otro contenido del mismo, no es vinculante dado que la información es ofrecida por terceros y puede contener errores. Se muestra a título informativo y no contractual.

Con nosotros estarás en buenas manos, pertenecemos a AVAI (Asociació Valenciana de Asesores Inmobiliarios). API asociado número 01184 y estamos en el Registro de Agentes de Intermediación Inmobiliaria de la Conselleria de Vivienda de la Comunitat Valenciana con el RAICV 3351.

El precio de venta no incluye los gastos inherentes a la compraventa. Estos comprenden los honorarios de la agencia inmobiliaria por los servicios prestados, los impuestos correspondientes (IVA o ITP, según el caso) y otros costes asociados como los de notaría, gestoría y registro de la propiedad. Para conocer el desglose exacto de los gastos, no dude en consultarnos.

última modificació

Distribució

  • Superfície 161 m2
Anunci: 48582000000063

Ubicació

San José-Los Metales

Navega pel mapa fent clic a sobre
T´avisem quan tinguem un anunci com aquest? Crea la teva alerta i nosaltres t´avisarem per correu electrònic quan hi hagin nous anuncis o siguin modificats
 

Contactar Gestiona

Referència de l´anunci habitaclia/ML002:

Veuràs el telèfon després d´enviar el contacte a l´anunciant perquè et pugui atendre.
Veuràs el telèfon després de contactar
Enviant…