Comentari guardat!
Només ho veuràs tú
Comment saved!
Afegeix la teva valoració i/o un comentari per aquest anunci. Només el veuràs tu

Terreny residencial a Sant miquel Granollers

  • 154 m2
  • 2.552 €/m2

Terreno en venta en la zona centro de Granollers

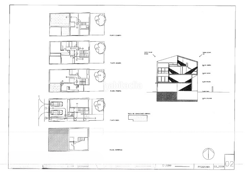
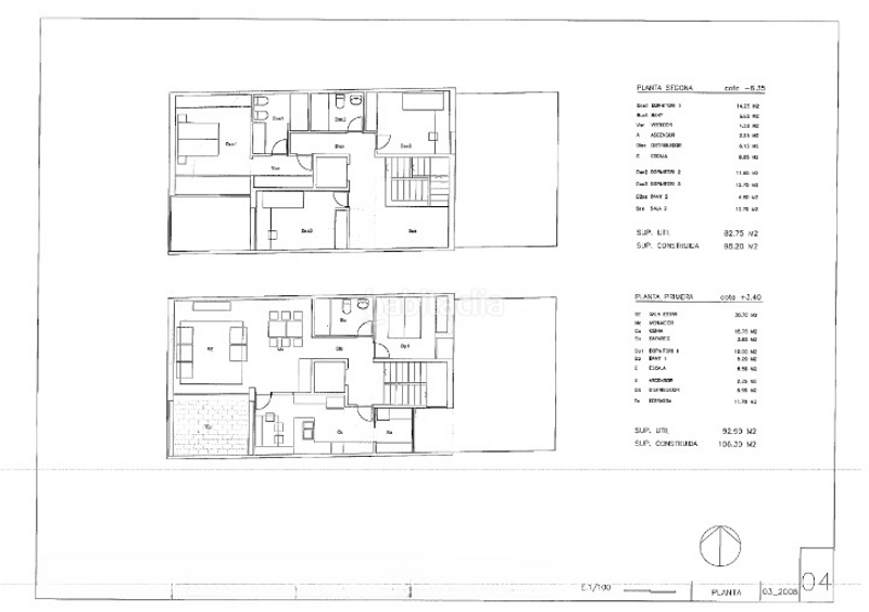
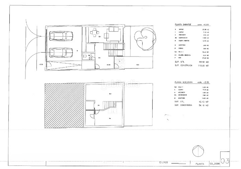
Con una superficie gráfica de 158 m², este terreno ofrece la posibilidad de construir planta baja, primera planta, segunda planta y altillo, brindando así la oportunidad de diseñar la casa de tus sueños.

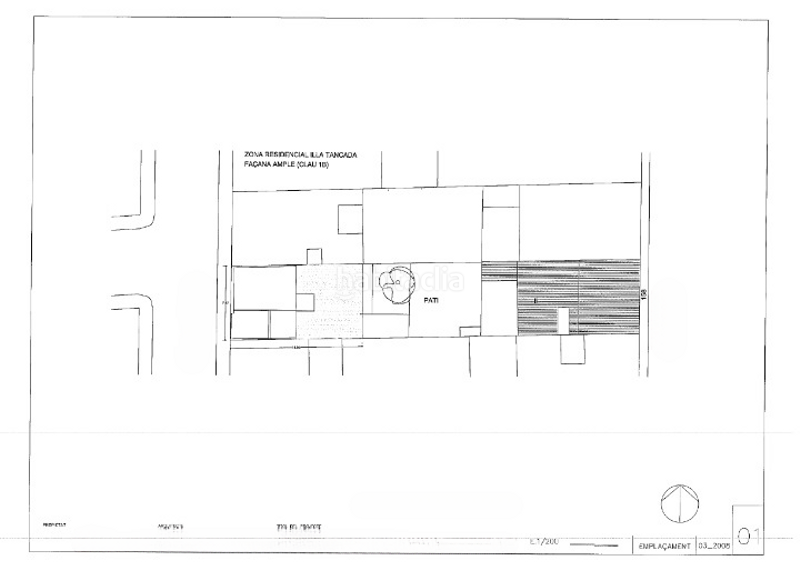
Además, cuenta con un patio posterior de 45 m², ideal para disfrutar de momentos al aire libre.

Su ubicación privilegiada a pocos minutos del corazón de Granollers, te permitirá disfrutar de todos los servicios y comodidades que ofrece la ciudad.

Superficie total del terreno: 154 m²
Superficie mínima en venta: 154 m²
Superficie edificable: 392 m²
Distancia al municipio más cercano: En núcleo urbano
Servicios disponibles: Agua, luz, alcantarillado, alumbrado público, aceras
Tipo de terreno: Urbano (solar)
Uso permitido: Residencial unifamiliar (chalets)
Posibilidad de construir hasta 3 plantas.

Si estás interesado en obtener más información sobre este terreno, no dudes en llamarnos.

*Los gastos registrales, notariales e impuestos que le sean de aplicación u otros gastos inherentes a la compraventa no están incluidos en el precio.

Si necesitas financiación, no dudes en consultar con nuestro departamento financiero sin compromiso en el trámite de hipotecas ¡DE MANERA TOTALMENTE GRATUITA!

Además, si deseas conocer el valor de tu vivienda, contáctenos y te la valoramos SIN COMPROMISO Y SIN COSTE.

última modificació

Distribució

  • Superfície 154 m2
Anunci: 5878004498513

Ubicació

Sant miquel

Navega pel mapa fent clic a sobre
T´avisem quan tinguem un anunci com aquest? Crea la teva alerta i nosaltres t´avisarem per correu electrònic quan hi hagin nous anuncis o siguin modificats
 

Contactar QHABITA ASSESSORS IMMOBILIARIS SCP

Referència de l´anunci habitaclia/qhabita-679:

Veuràs el telèfon després d´enviar el contacte a l´anunciant perquè et pugui atendre.
Veuràs el telèfon després de contactar
Enviant…