Favorito y comentario
Terreny residencial a Valldoreix Sant Cugat del Vallès
Característiques principals
- 2.048 m2
- 854 €/m2
Informació detallada
¡Exclusivo terreno doble en Valldoreix — Oportunidad irrepetible para construir dos viviendas!
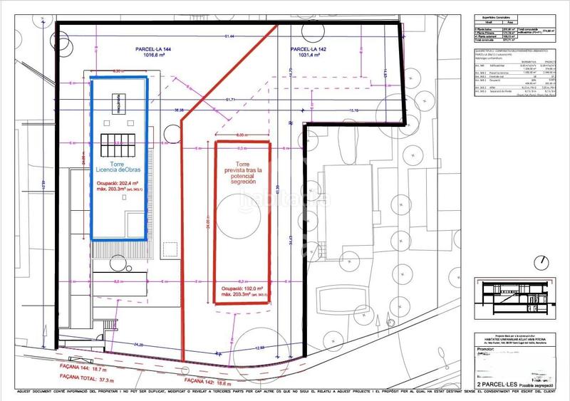
En la prestigiosa Avenida Mas Fuster, en la zona alta de Valldoreix, se encuentra este extraordinario solar de más de 2.000 m². Su orientación Sureste asegura luz natural durante todo el día, mientras que su ubicación elevada ofrece vistas despejadas en un entorno tranquilo y consolidado, rodeado de elegantes viviendas unifamiliares.
? Lo que hace único a este terreno:
Licencia de obra y proyecto incluidos: Listo para construir de inmediato una casa unifamiliar de 572 m² distribuidos en sótano, planta baja y primera planta, con 4 dormitorios, 4 baños, sala multiusos, lavadero, trastero, garaje para 3 coches y un jardín privado de 1.800 m² con piscina de 28 m².
Parcela doble con posibilidad de segregación: El terreno puede dividirse en 2 parcelas independientes de 1.000 m² y 1.048 m², ambas edificables según la calificación urbanística 20a/11.
?? Tres formas de aprovechar esta oportunidad única:
1?? Construir dos viviendas independientes: Perfecto para familias que quieren estar cerca pero mantener privacidad, o para una inversión inmobiliaria con doble rentabilidad.
2?? Construir una vivienda y vender la segunda parcela: Rentabiliza tu inversión desde el primer momento.
3?? Levantar una gran casa de lujo: Disfruta de un solar excepcional para una sola residencia con jardín y espacios exteriores impresionantes.
??? Detalles urbanísticos destacados:
Ocupación máxima en planta: 20%
Edificación máxima total: 50%
Altura permitida: Planta baja + 2 plantas (máx. 9,15 metros)
Construcción auxiliar: Hasta 3% adicional
Proyecto modificable según los gustos y necesidades del comprador.
?? Ubicación privilegiada:
Frente a parada de autobús
A 3 minutos en coche de la estación de Ferrocarriles
A 1 minuto del Club de Tenis
Zona completamente urbanizada: alcantarillado, alumbrado público y aceras.
?? Los terrenos dobles con estas posibilidades son prácticamente inexistentes en Valldoreix. Ya sea para construir tu hogar ideal, desarrollar dos proyectos independientes o invertir con vistas a la rentabilidad, esta propiedad es una apuesta segura y exclusiva.
¡Contáctanos ahora y descubre todo su potencial antes de que alguien más se adelante!
última modificació
Distribució
- Superfície 2048 m2
Galeria
Ubicació
Valldoreix
