Comentari guardat!
Només ho veuràs tú
Comment saved!
Afegeix la teva valoració i/o un comentari per aquest anunci. Només el veuràs tu
3.995.000 € Avisa´m si baixa

Xalet amb calefacció aparcament piscina a La Fustera Benissa

  • 600 m2
  • 5 hab.
  • 5 banys
  • 6.658 €/m2




UBICACIÓN
A solo 400 m de la Playa La Fustera se encuentra esta impresionante villa de lujo de estilo ibicenco, que ofrece unas vistas excepcionales al mar. La fecha de entrega de esta magnífica propiedad está prevista para finales de 2025.


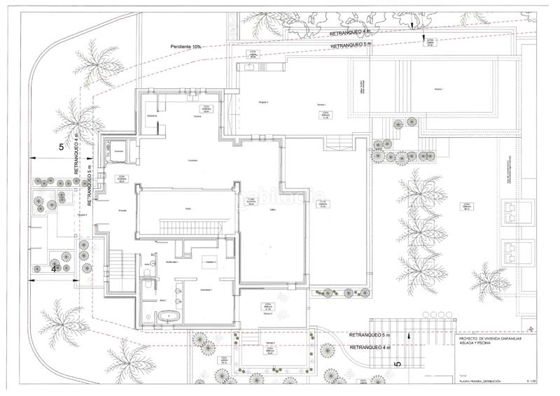
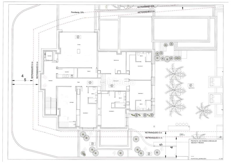
DISTRIBUCIÓN
Construida sobre una parcela de 1.800 m² y con acabados de la más alta calidad, esta villa se distribuye en2 plantas conectadas por escaleras internas y un ascensor.


En la planta baja, se accede a través de una puerta corredera que abre paso a un amplio garaje con aparcamiento para dos coches. Además, esta planta cuenta con un lavadero, trastero, sala de cine y gimnasio. Y también encontramos cuatro amplios dormitorios, cada uno con su vestidor y baño en suite, todos con unas hermosas vistas al mar. En el exterior, esta planta ofrece una gran terraza con cocina de verano, zona lounge y una amplia piscina, ideal para disfrutar del clima mediterráneo.


Finalmente, en la planta alta se sitúa un espacioso salón, comedor, u aseo de invitados, y una cocina completamente equipada, además de una habitación adicional con baño en suite. En el exterior, esta planta dispone de una terraza y una pequeña piscina para momentos más íntimos.


EQUIPAMIENTO
La villa incluye calefacción central, aire acondicionado, una cocina americana completamente equipada, chimenea, cocina de verano y portero automático.


¡Contáctanos para programar una visita y descubrir todo lo que esta villa de ensueño tiene para ofrecer!

última modificació

Distribució

  • 5 habitacions
  • Superfície 600 m2
  • Terreny 1800 m2
  • 5 banys
  • Traster

Característiques generals

  • Calefacció
  • Piscina pròpia
  • Plaça aparcament
  • Aire Acondicionat
  • Any construcció 2025
  • Certificat energètic :
    Consumo:
    G
    999 kW h m2 / año
    Emisiones:
    G
    999 kg CO2 m2 / año
Anunci: 52627000000028

Ubicació

La Fustera

Navega pel mapa fent clic a sobre
3.995.000 € Preu de l´anunci
2.726 €/m2€/m2 población
6.658 €/m2€/m2 de l´anunci
Quant t´agradaria pagar?
Veure evolució €/m2 a Benissa
T´avisem quan tinguem un anunci com aquest? Crea la teva alerta i nosaltres t´avisarem per correu electrònic quan hi hagin nous anuncis o siguin modificats
 

Contactar Gh Costablanca

Referència de l´anunci habitaclia/VC40136:

Veuràs el telèfon després d´enviar el contacte a l´anunciant perquè et pugui atendre.
Veuràs el telèfon després de contactar
Enviant…