Favorito y comentario
Lloguer casa amb calefacció aparcament a Can Girona - Terramar - Vinyet Sitges
Característiques principals
- 800 m2
- 7 hab.
- 7 banys
- 22,50 €/m2
Informació detallada
Casa en alquiler en Can Girona
EXCLUSIVA VIVIENDA SIN AMUEBLAR A ESTRENAR DE 7 HABITACIONES EN CAN GIRONA (SITGES)
¡¡¡DISPONIBLE YA PARA CONTRATOS DE LARGA DURACIÓN!!!!
Ubicada en la prestigiosa y segura urbanización de Can Girona, esta imponente casa de tres plantas sobre una parcela de 1.640m2, 800m2 construidos y 590m2 útiles, ofrece una combinación única de amplitud, diseño moderno y privacidad, rodeada de naturaleza y con vistas totales al mar, al campo de golf y a la maravillosa Sitges que estará disponible para contratos de larga duración a primeros de septiembre.
Distribución y características principales:
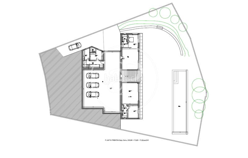
Planta principal:
Impresionante hall de entrada de techos altos de microcemento que distribuye las zonas de día: Gran salón-comedor de 80m2 con ventanales de suelo a techo que inundan el espacio de luz natural y se abren a una terraza de 177m2 con vistas al mar Mediterráneo más una habitación doble a modo de servicio o para invitados.
Cocina abierta de estilo minimalista con electrodomésticos de alta gama, con acceso directo a la terraza y escaleras centrales al jardín.
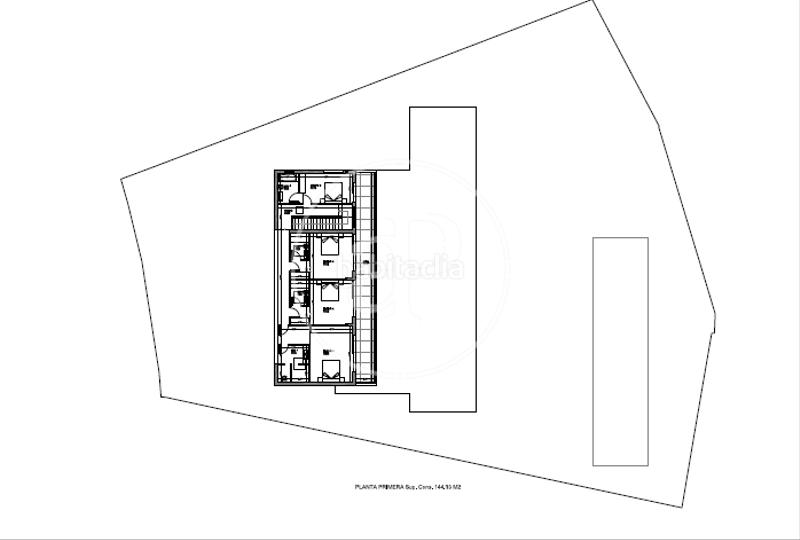
Planta superior:
Cuatro amplias habitaciones en suite, todas exteriores, con armarios y salida a la terraza con unas vistas despejadas y maravillosas al mar y con gran luminosidad en cada estancia.
Planta sótano:
Dos habitaciones adicionales ideales tipo estudio y en suite que darán independencia a los invitados.
Zona de aguas, trastero y parking para hasta siete coches
Zona exterior:
Jardín privado con zonas de vegetación mediterránea.
Piscina de diseño rectangular, ideal para el disfrute en verano.
Parcela completamente vallada que garantiza privacidad y seguridad.
Extras:
Garaje cerrado con capacidad para 7 coches.
Calefacción por suelo radiante y aire acondicionado por conductos.
Vivienda sin amueblar, ideal para personalizar al gusto.
Los suministros de agua, luz, internet y alarma se pagan aparte.
Los servicios de mantenimiento de piscina y jardín están incluidos en el precio.
Esta propiedad es perfecta para familias que buscan una residencia exclusiva, espaciosa y lista para ser adaptada a su estilo de vida en uno de los entornos más codiciados del Mediterráneo.
¡No puedes dejar de concertar una visita para visitar y enamorarte de esta exclusiva propiedad!
* En cumplimiento de la Ley 12/2023 y la Llei 18/2007 informamos que:
Respecto a la presente propiedad no existe certificado informativo estatal de referencia de precios de alquiler
La presente propiedad tiene la consideración de suntuaria por razón de superficie y/o renta, y por ello de conformidad a la LAU no es de aplicación el índice estatal de referencia de precios de alquiler.
Ref. AB2507080
última modificació
Información del precio
Distribució
- 7 habitacions
- Superfície 800 m2
- 7 banys
- Traster
Característiques generals
- Calefacció
- Plaça aparcament
- Aire Acondicionat
- Any construcció 2025
Galeria
Ubicació
Can Girona - Terramar - Vinyet Carrer del Molí
