Comentari guardat!
Només ho veuràs tú
Comment saved!
Afegeix la teva valoració i/o un comentari per aquest anunci. Només el veuràs tu

Lloguer local comercial a helsinki kalea 10 a Salburua - Arantzabela Vitoria - Gasteiz

  • 106 m2
  • 3,20 €/m2

Modalidades: Venta, Alquiler y Alquiler con opción de compra.

Local de obra nueva, diáfano, sin acondicionar, con muchas posibilidades.
Modalidad de comercialización: Venta en plena propiedad, Alquiler y Alquiler con opción de compra (AROC).

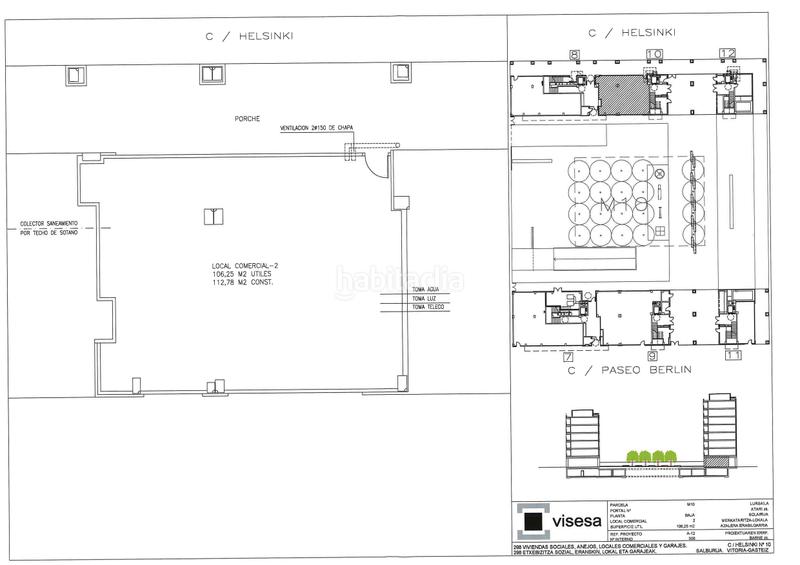
Superficie útil: 106,25 m2u (aprox. ).

Precios orientativos:
Precio de venta: 83.215 € (más IVA).
Alquiler con opción a compra: 339 € (más IVA).

Además en el alquiler o Alquiler con opción a compra las características son las siguientes:

•5 años de contrato.

•Carencia de 6 meses en el pago de la renta por hacer obras de reforma.

•Un 25% de descuento durante 6 meses por cada puesto de trabajo generado (incluido el autoempleo) con un máximo del 50% de bonificación.

•En el alquiler con opción a compra, a la firma del contrato y por tan sólo un pago del 1% del precio estipulado de venta, se consigue:

1. Una opción de compra con una reducción asegurada si se ejecuta la opción de compra del inmueble, descontado del precio de compra además de ese 1% abonado, un importante% de las rentas abonadas hasta el momento de la compra. El % varía según el año que se quiera ejercitar la compra.
2. Asegura por contrato, el precio máximo al que se puede comprar el local, evitando el riesgo de subida de precios en el mercado en los próximos años.

Más información:
Oficina de Atención a la Ciudadanía de Vitoria-Gasteiz
Portal de Gamarra 1A - Bajo (Edificio El Boulevard - entrada por C/ Zaramaga)
01013 Vitoria-Gasteiz.
Tfno:
E-mail:

adi.eus/webvis01-localeslistado/es/?pageSize=10&rowIni=1&idioma=es&idProvincia=1&poblacion=Vitoria-Gasteiz

última modificació

Distribució

  • Superfície 106 m2

Característiques generals

  • Sense moblar
  • Sense aire acondicionat
  • Any construcció 2006
  • Certificat energètic :
    Exempt
Anunci: 31065004113787

Ubicació

Salburua - Arantzabela Helsinki Kalea 10

Navega pel mapa fent clic a sobre
T´avisem quan tinguem un anunci com aquest? Crea la teva alerta i nosaltres t´avisarem per correu electrònic quan hi hagin nous anuncis o siguin modificats
 

Contactar VISESA

Referència de l´anunci habitaclia/LOCAL SALBURUA (VITORIA/GASTEIZ) (A-012/306) :

Veuràs el telèfon després d´enviar el contacte a l´anunciant perquè et pugui atendre.
Veuràs el telèfon després de contactar
Enviant…