Comentari guardat!
Només ho veuràs tú
Comment saved!
Afegeix la teva valoració i/o un comentari per aquest anunci. Només el veuràs tu

Lloguer local comercial a calle parras 20 a San Gil Sevilla

  • 205 m2
  • 2 banys
  • 12,20 €/m2

LOCAL CENTRICO ADAPTADO A ESCUELA DE EDUCACION INFANTIL

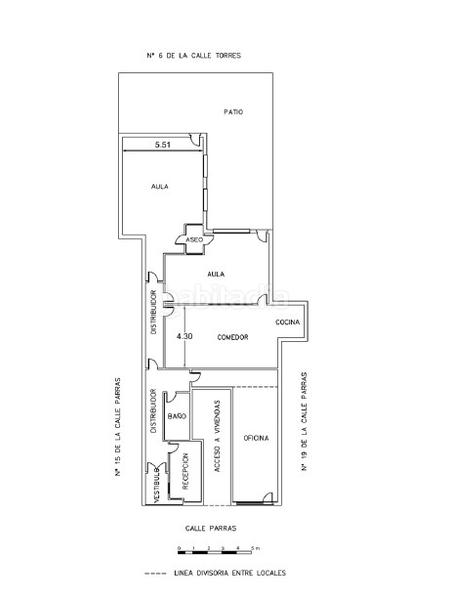
Se trata de un local de 206 metros cuadrados (2 finca registrales) y 75 metros de patio, con fachada a pie de Calle Parras, en el céntrico barrio de San Gil. Actualmente adecuado a CEI (Centro de educación infantil). Tiene la calificación de "centro completo" cumpliendo con todos los requisitos de la Junta de Andalucia, teniendo otorgada tanto la licencia de la Junta como del Ayuntamiento de Sevilla para su funcionamiento.

Se disrtibuye en, pasillo distribuidor, 3 aulas, 1baño infantil, 1baño minusvalidos, oficina, sala de usos multiples con cocina-office integrada y patio.

En cuanto a sus calidades, cuenta con soleria de losetas de caucho en el patio, suelo continuo antibacteriano, airte acondicionado, techo desmontable, acristalamientos dobles etc.

El mobiliario no esta incluido.
Disponible también la opción de comprar (400.000 € mensuales, incluyendo licencias)
Disponible la opción de traspaso (consultar condiciones)

última modificació

Distribució

  • Superfície 205 m2

Característiques generals

  • Sense moblar
  • Sense aire acondicionat
  • Any construcció 2010
  • Certificat energètic :
    Consumo:
    G
    342 kW h m2 / año
    Emisiones:
    G
    925 kg CO2 m2 / año
Anunci: 23571000000192

Ubicació

San Gil Calle Parras 20

Navega pel mapa fent clic a sobre
T´avisem quan tinguem un anunci com aquest? Crea la teva alerta i nosaltres t´avisarem per correu electrònic quan hi hagin nous anuncis o siguin modificats
 

Contactar MENINAS 92

Referència de l´anunci habitaclia/paidosa:

Veuràs el telèfon després d´enviar el contacte a l´anunciant perquè et pugui atendre.
Veuràs el telèfon després de contactar
Enviant…