Comentari guardat!
Només ho veuràs tú
Comment saved!
Afegeix la teva valoració i/o un comentari per aquest anunci. Només el veuràs tu

Lloguer nau industrial a joan buscallà 3 a Roquetes-Can Magí Sant Cugat del Vallès

  • 9.000 m2
  • 4,51 €/m2

Nave Industrial en Alquiler en Sant Cugat del Vallès.

Avecla Realty presenta una excelente oportunidad para el arrendamiento de una nave industrial en Sant Cugat del Vallès.
El Polígono Industrial Can Magí cuenta con muy buenas conexiones, situado a tan solo 5 minutos de la AP-7. Se trata de una zona industrial dinámica, que alberga diversas empresas y servicios, y se encuentra cerca de una área residencial.

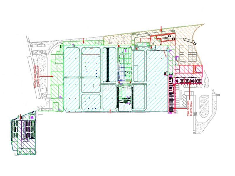
SUPERFÍCIES:
Planta Baja:
- Zona producción: 9.025 m2
- Oficinas: 1.305 m2
- Almacén: 1.084
- Vestuarios: 1.193 m2

Posibilidad de oficinas : 2.394 m2
*Aconsultar

Patio: 2.191 m2
TOTAL CONSTRUIDO: 15.000 m2

CARACTERÍSTICAS:
- Estructura metálica.
- Cubierta de chapa.
- 2 Muelles de carga.
- 3 Puertas TIR (una de ellas mediante rampa con acceso a la nave).
- Acceso peatonal independiente a oficinas.
- Almacén diáfano.
- Altura de 5,7m.
- Oficinas acondicionadas en P.Baja y P. Primera.
- 6 Baños/Aseos.
- Sala office/comedor.
-Vestuarios habilitados.
- Suministros de alta.
- Potencia actual 1600 kW (consultar la posibilidad de ampliar)
- Recinto privado.
-Aparcamiento dentro de recinto.

Para mas información no dude en ponerse en contacto con nosotros al +.

última modificació

Distribució

  • Superfície 9000 m2
Anunci: 28314004370381

Ubicació

Roquetes-Can Magí Joan Buscallà 3

Navega pel mapa fent clic a sobre
T´avisem quan tinguem un anunci com aquest? Crea la teva alerta i nosaltres t´avisarem per correu electrònic quan hi hagin nous anuncis o siguin modificats
 

Contactar AVECLA REALTY

Referència de l´anunci habitaclia/11240:

Veuràs el telèfon després d´enviar el contacte a l´anunciant perquè et pugui atendre.
Veuràs el telèfon després de contactar
Enviant…