Comentari guardat!
Només ho veuràs tú
Comment saved!
Afegeix la teva valoració i/o un comentari per aquest anunci. Només el veuràs tu

Lloguer oficina amb calefacció aparcament a Lavadores Vigo

AVENIDA DE MADRID

  • 517 m2
  • 6,19 €/m2

Amplias oficinas en Avenida de Madrid, totalmente acondicionadas y distribuidas en dos Plantas

Exteriores muy luminosas y con zona de aparcamiento exterior


Una propiedad estratégica y polivalente, perfecta para emprendedores e inversores que buscan potenciar su negocio en una ubicación privilegiada de Vigo.

CONTÁCTANOS YA Para más información, visita y reservas en VigoHome

Consúltanos sin compromiso y le ayudaremos a encontrar el local que mejor se adapte a sus necesidades.

Puedes ver el resto de nuestras propiedades disponibles en nuestra página web, ponte en contacto con nosotros y estaremos encantados en orientarte en tu compra. Te acompañaremos y asesoraremos en el proceso de la compraventa hasta la entrega de llaves.

Asesórate con nosotros. Ofrecemos estudio financiero gratis donde podrás conseguir una financiación a tu medida (sujeta a estudio)

Contáctanos ya!! A través de este formulario, llamándonos o a través de nuestra web

La información contenida en este anuncio es meramente informativa y no tiene carácter contractual.

última modificació

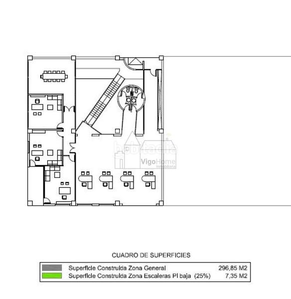
Distribució

  • Superfície 517 m2

Característiques generals

  • Calefacció
  • Plaça aparcament
  • Moblat
  • Aire Acondicionat
  • Any construcció 1999
  • Certificat energètic :
    Consumo:
    G
    999 kW h m2 / año
    Emisiones:
    G
    999 kg CO2 m2 / año

Equipament comunitari

  • Ascensor
Anunci: 33588000002389

Ubicació

Lavadores AVENIDA DE MADRID

Navega pel mapa fent clic a sobre
T´avisem quan tinguem un anunci com aquest? Crea la teva alerta i nosaltres t´avisarem per correu electrònic quan hi hagin nous anuncis o siguin modificats
 

Contactar VigoHome

Referència de l´anunci habitaclia/L010169:

Veuràs el telèfon després d´enviar el contacte a l´anunciant perquè et pugui atendre.
Veuràs el telèfon després de contactar
Enviant…