Comentari guardat!
Només ho veuràs tú
Comment saved!
Afegeix la teva valoració i/o un comentari per aquest anunci. Només el veuràs tu

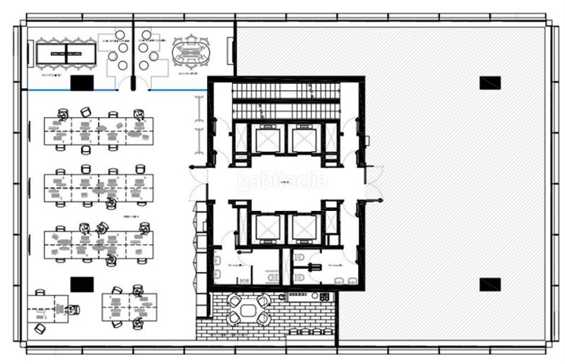
Lloguer oficina amb calefacció aparcament a Provençals del Poblenou Barcelona

  • 290 m2
  • 2 banys
  • 22,00 €/m2

**Oficinas TOTALMENTE RENOVADAS Todas con TERRAZA PRIVATIVA en TORRE LLACUNA**
Edificio exento de PB + 12 en INMEJORABLE SITUACIÓN junto la Plaza y Centro
Comercial Westfield Glòries.

OFICINAS:
GRAN LUMINOSIDAD y VISTAS 360º a toda la ciudad.
Grandes ventanales con posibilidad de ventilación natural.
Suelo técnico con acabado parqué.
Altura libre de 3,15 m y suelo técnico 18cm.
Techo visto con iluminación LED.
Doble núcleo de aseos por planta completamente renovado.
Aire acondicionado VRV sectorizado y BMS para la regulación y gestión de todo el edificio.
Total Reposicionamiento con nuevo diseño arquitectónico permitiendo grandes luces y oficinas abiertas a los 4 vientos

ZONAS COMUNES:
*Área colaborativa de salas para formación, eventos, conferencias o reuniones en planta 1ª: Un espacio polivalente y flexible perfecto para llevar a cabo todo tipo de actividades de equipo, formaciones y eventos exclusivos - Un área de encuentro donde pararse a disfrutar de un buen café y socializar de manera informal
Cantina con Terraza Exterior de uso común en planta 1ª.
Vestuarios, duchas y taquillas.
Gran lobby a doble altura con Video-wall y Zona Lounge para relajarse.
Seguridad 24/7. Conserjería-Cartería y 4 ascensores. Centralización control de accesos
con CCTV.
Plazas con carga eléctrica: coches, bicis, patinetes y moto.
Certificaciones BREEAM Very Good, WELL y WIREDSCORE.
Amplias zonas ajardinadas y de gran vegetación en los accesos.

TRANSPORTE y COMUNICACIONES:
Metro: Glòries (L1) | 3 min. a pie, Llacuna (L4) | Poblenou (L4) | 10 min.
Tranvía: Tranvía T5, T6 (Glòries) •T4 (Vila Olímpica - Sant Adrià).
Renfe: Líneas 1 y 2 - El Clot.
Bus: 7, 33, 34, 35, 43, 44, 50, 51, 56, 60 y otros
Aeropuerto del Prat: 25 min.

última modificació

Distribució

  • Superfície 290 m2
  • Terrassa 15 m2

Característiques generals

  • Calefacció
  • Plaça aparcament
  • Sense moblar
  • Aire Acondicionat
  • Any construcció 2024
  • Certificat energètic :
    Consumo:
    A
    120 kW h m2 / año
    Emisiones:
    A
    30 kg CO2 m2 / año

Equipament comunitari

  • Ascensor
Anunci: 5042004432108

Ubicació

Provençals del Poblenou Carrer de la Llacuna

Navega pel mapa fent clic a sobre
T´avisem quan tinguem un anunci com aquest? Crea la teva alerta i nosaltres t´avisarem per correu electrònic quan hi hagin nous anuncis o siguin modificats
 

Contactar JORDÀ & GUASCH

Referència de l´anunci habitaclia/H-2423:

Veuràs el telèfon després d´enviar el contacte a l´anunciant perquè et pugui atendre.
Veuràs el telèfon després de contactar
Enviant…