Favorito y comentario
Lloguer oficina amb calefacció a Dreta de l´Eixample Barcelona
Característiques principals
- 15 m2
- 120,00 €/m2
Informació detallada
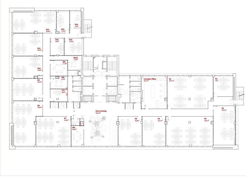
Oficinas en alquiler en un edificio de coworking en Avenida Diagonal
Oficinas en alquiler de 14,40m² con capacidad para 4 personas situadas en un edificio de co-working, en la emblemática Avenida Diagonal, a pocos metros de la Plaça de Reina María Cristina.
El alquiler incluye: control y vigilancia 24h los 365 días del año, consumo de luz, agua y aire acondicionado, Wifi y fibra óptica, mantenimiento y limpieza de todo el workspace, mobiliario de trabajo, equipos multifunción, proyector y pantalla interactiva, línea de teléfono fija ya contratada y uso de las zonas comunes: salas de reuniones, coffee corner, zona de vending y salas de espera.
La zona de Diagonal es el distrito financiero por excelencia de la Ciudad Condal. Este nuevo workspace se encuentra estratégicamente situado en Avenida Diagonal 601, en la concurrencia con la calle Gandesa. Entre los centros comerciales L’lla Diagonal y Corte Inglés de María Cristina.
Honorarios inquilino: 12% más IVA de una anualidad de la renta base.
"Contacte con nosotros para solicitar más información o visitar el inmueble"
última modificació
Distribució
- Superfície 15 m2
Característiques generals
- Calefacció
- Aire Acondicionat
Equipament comunitari
- Ascensor
Galeria
Ubicació
Dreta de l´Eixample Diagonal
