Favorito y comentario
Lloguer oficina amb calefacció a Dreta de l´Eixample Barcelona
Característiques principals
- 1.498 m2
- 12,68 €/m2
Informació detallada
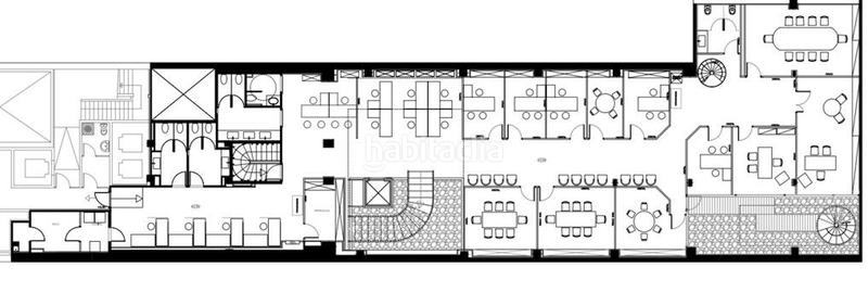
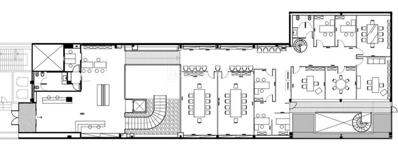
Oficina en duplex en Rambla Catalunya.
DESGLOSE DE SUPERFICIE
Planta 1: 507m²
Planta baja: 611m²
Archivo (sótano):380m²
Total: 1.498m²
CONDICIONES ECONÓMICAS
Renta: 12,68€/m²/mes
Gastos: a determinar
IBI a consultar
CARACTERISTICAS
Suelo técnico
Falso techo con luminarias empotradas
Estructura diáfana
Conserjería
2 terrazas privativas
Gran imagen corporativa
Con derecho a terraza superior de 140 m²
UBICACIÓN
Edificio de oficinas en Rambla Catalunya, en pleno centro de negocios y comercial de Barcelona. Cuenta con excelentes comunicaciones por transporte público.
Metro: L5 parada Diagonal, L2-L4 P. de Gràcia, L1-L3 Pl. Catalunya
FGC: S1-S2-S5-S55-L6-L7 parada Pl. Catalunya
RENFE: parada Passeig de Gràcia /Pl. Catalunya
Bus: 28-43-N4-N5-N6
Si lo prefiere, puede contactar con nosotros a través de WhatsApp escribiéndonos en el:
última modificació
Distribució
- Superfície 1498 m2
Característiques generals
- Calefacció
- Sense plaça aparcament
- Sense moblar
- Aire Acondicionat
- Planta número 1
Equipament comunitari
- Sense ascensor
Galeria
Ubicació
Dreta de l´Eixample N/A
