Comentari guardat!
Només ho veuràs tú
Comment saved!
Afegeix la teva valoració i/o un comentari per aquest anunci. Només el veuràs tu

Lloguer oficina amb calefacció a Gòtic Barcelona

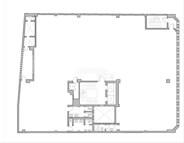
  • 568 m2
  • 21,00 €/m2

En pleno centro de negocios

Oficinas ubicadas en Plaza Catalunya de Barcelona. Zona Prime.

DESGLOSE DE SUPERFICIES:
Planta 8 : 568 m²

CONDICIONES ECONÓMICAS:
Renta: 21,00€/m²/mes
Gastos: 5,63€/m²/mes

CARACTERÍSTICAS:
- Diáfana con divisorias.
- Suelo técnico
- Falso techo con luminarias empotradas.
- Sistema climatización.
- Sala office.
- Aseos.
- Instalación eléctrica según normativa vigente.
- Conserjería
- El ascensor llega hasta planta 10

UBICACIÓN
Oficinas ubicadas en Plaza Catalunya, en pleno centro de negocios y comercial de Barcelona.
Metro: parada Plaza Catalunya L1-L3  
FGC: parada Plaza Catalunya S1-S2-S5-S55-L6-L7   
RENFE: P. Pl. Catalunya R1-R4-R7    
Bus.

Si lo prefiere, puede contactar con nosotros a través de WhatsApp escribiéndonos en el:

última modificació

Distribució

  • Superfície 568 m2

Característiques generals

  • Calefacció
  • Sense plaça aparcament
  • Sense moblar
  • Aire Acondicionat
  • Planta número 8
  • Certificat energètic :
    Consumo:
    G
    999 kW h m2 / año
    Emisiones:
    G
    999 kg CO2 m2 / año

Equipament comunitari

  • Sense ascensor
Anunci: 3097004297751

Ubicació

Gòtic N/A

Navega pel mapa fent clic a sobre
T´avisem quan tinguem un anunci com aquest? Crea la teva alerta i nosaltres t´avisarem per correu electrònic quan hi hagin nous anuncis o siguin modificats
 

Contactar Activa Properties

Referència de l´anunci habitaclia/20640:

Veuràs el telèfon després d´enviar el contacte a l´anunciant perquè et pugui atendre.
Veuràs el telèfon després de contactar
Enviant…