Amplia oficina en alquiler en la calle Manuel Tovar, Fuencarral
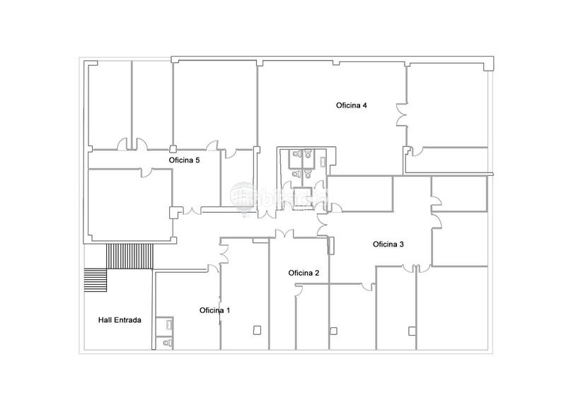
¿Buscas un espacio de trabajo versátil y bien ubicado? Disponemos de una oficina de 600 m² en una misma planta, con entrada privada y recibidor desde la calle, ideal para empresas que necesitan amplitud y comodidad. La oficina, exterior a la calle Manuel Tovar, se encuentra en una de las principales arterias del polígono industrial de Fuencarral, en plena prolongación de la Castellana y Chamartín. Este espacio cuenta con conexiones cercanas a la A-1, M-30 y M-40, facilitando el acceso desde diferentes puntos de la ciudad. La oficina dispone de baños en zonas comunes. Suministros de luz y agua activos.
Cuenta con diversos sistemas de climatización, ya que anteriormente estaba dividida en cinco oficinas de diferentes tamaños (entre los 70 y los 180 m2), lo que la hace perfecta para establecer un coworking o una amplia oficina para una sola compañía. ¡No pierdas la oportunidad de establecer tu negocio en una ubicación privilegiada con todas las comodidades!
última modificació
Text traduït per un sistema automàtic
Traducció no disponible
habitaclia.com no es responsabilitza dels errors que la informació mostrada en aquest mapa pugui contenir. L´usuari serà el responsable de l´ús que doni a aquesta informació.
T´avisem quan tinguem un anunci com aquest?Crea la teva alerta i nosaltres t´avisarem per correu electrònic quan hi hagin nous anuncis o siguin modificats
Veuràs el telèfon després d´enviar el formulari de Contactar amb l´anunciant
Introdueix el codi que apareix a la imatge superior.
Les meves notificacions
les meves cerques
Els meus favorits
Anuncis contactats
Alertes d´un anunci:
T´enviem per correu electrònic els últims canvis a l´immoble seleccionat
Alertes anuncis similars:
T´enviem per correu electrònic els últims immobles i promocions que s´hagin publicat a habitaclia i que concordin amb les preferències de la teva cerca
Afegir a favorits
Esborrar de favorits
L´Índex de referència de preus de lloguer és un indicador que publica l´Agència de l´Habitatge de Catalunya i que permet conèixer una estimació del preu mitjà del metre quadrat de lloguer d´una vivenda situada en una zona i amb unes determinades característiques. També orienta sobre el preu mínim i màxim que pot arribar a tenir aquesta vivenda.