Favorito y comentario
Lloguer oficina a Dreta de l´Eixample Barcelona
Característiques principals
- 434 m2
- 2 banys
- 17,28 €/m2
Informació detallada
OFICINA EN EL CENTRO DE BARCELONA, IDEAL PARA CENTROS MÉDICOS, LABORATORIOS O NEGOCIOS DE PRESTIGIO
IDEAL PARA CENTROS MÉDICOS, LABORATORIOS O NEGOCIOS DE PRESTIGIO.
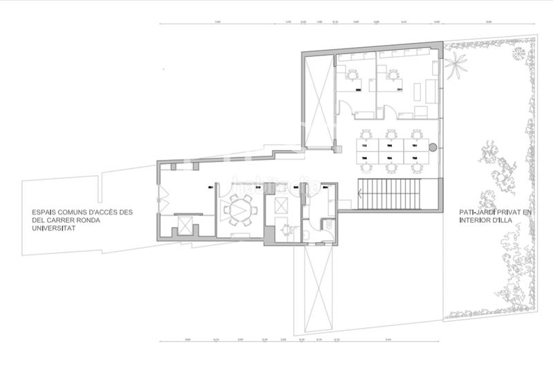
Oficinas exclusivas en el corazón de Barcelona. Planta baja a pie de calle ideal para centros médicos, laboratorios, agencias de publicidad, despachos de arquitectura, bufetes de abogados, etc.
Ubicadas en una de las zonas más codiciadas del centro de Barcelona, estas oficinas en planta baja ofrecen una combinación perfecta de funcionalidad, elegancia y tranquilidad. Con excelentes conexiones de transporte y rodeadas de todos los servicios, representan una oportunidad única en una ubicación estratégica.
Superficie total de 434 m² distribuidos en:
Planta baja: 158 m²
Planta sótano: 251 m²
Elementos comunes: 25 m²
El inmueble forma parte de un edificio histórico con gran carácter, al que se accede a través de un vestíbulo señorial que transmite una imagen corporativa sólida y distinguida. Al no contar con fachada directa a la calle, garantiza máxima privacidad y discreción, ideal para empresas que valoran un entorno tranquilo dentro del dinamismo urbano.
Uno de los grandes atractivos del espacio es su encantador patio interior ajardinado: un auténtico oasis de calma que proporciona luz natural y confort a las zonas de trabajo.
La propiedad se encuentra en excelente estado de conservación y lista para entrar.
Una oportunidad excepcional para empresas o inversores que buscan estabilidad, ubicación estratégica y alto potencial de revalorización.
Gastos de comunidad 436,68€/mes e IBI 583,33€/mes.
última modificació
Distribució
- Superfície 434 m2
- Terrassa 100 m2
Característiques generals
- Sense plaça aparcament
- Aire Acondicionat
- Any construcció 1998
Equipament comunitari
- Ascensor
Galeria
Ubicació
Dreta de l´Eixample Ronda de la Universitat
