Comentari guardat!
Només ho veuràs tú
Comment saved!
Afegeix la teva valoració i/o un comentari per aquest anunci. Només el veuràs tu

Lloguer oficina a La Nova Esquerra de l´Eixample Barcelona

  • 64 m2
  • 11,72 €/m2

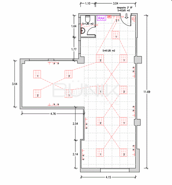
Oficina de alquiler en C/ Tarragona junto a Sants

Reformado, con suelo de parquet, instalación eléctrica nueva C6” + rack desde donde se conecta con cada enchufe de superficie ubicado para situar los puestos de trabajo del futuro inquilino, techo registrable con pantallas LED integradas, aire acondicionado y pintura general.

El edificio cuenta con 2 ascensores y servicio de portería.

Otras posibilidades disponibles en la finca:
- 55m2: 933,44€
- 141m2: 993,94€

Para más información o visitas: 61518359

última modificació

Distribució

  • Superfície 64 m2

Característiques generals

  • Planta número 2
  • Certificat energètic :
    Consumo:
    C
    62 kW h m2 / año
    Emisiones:
    D
    306 kg CO2 m2 / año

Equipament comunitari

  • Ascensor
Anunci: 45420000000442

Ubicació

La Nova Esquerra de l´Eixample

Navega pel mapa fent clic a sobre
T´avisem quan tinguem un anunci com aquest? Crea la teva alerta i nosaltres t´avisarem per correu electrònic quan hi hagin nous anuncis o siguin modificats
 

Contactar Bünik Home

Referència de l´anunci habitaclia/AOV1489:

Veuràs el telèfon després d´enviar el contacte a l´anunciant perquè et pugui atendre.
Veuràs el telèfon després de contactar
Enviant…