Favorito y comentario
Lloguer pis amb calefacció aparcament a Sant Francesc Valencia
Característiques principals
- 238 m2
- 6 hab.
- 2 banys
- 12,18 €/m2
Informació detallada
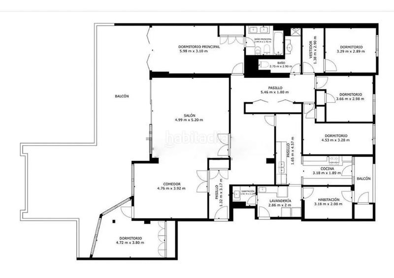
Piso de 238 m con 6 dormitorios y una terraza de 30 m en alquiler en el centro de Valencia, en el barrio de Sant Francesc.
Lucas Fox presenta este amplio y elegante piso en pleno barrio de San Francesc, a pocos metros de la plaza del Ayuntamiento y la estación de trenes del Norte en Valencia.
Consta de un amplio salón-comedor con unos grandes ventanales que permiten la entrada de abundante luz natural durante todo el día. Desde el salón, tras cruzar una amplia cristalera corredera, se ofrece acceso directo a la gran terraza de aproximadamente 30 m². Desde el comedor, accedemos a un dormitorio, perfecto para configurar como zona de despacho, ya que también tiene acceso a la terraza. Desde la zona del comedor, continuamos por la vivienda y pasamos a la zona de cocina y la zona de servicio.
La cocina es bastante amplia y está recién reformada. Cuenta con zona de almacenaje, zona de cocina y acceso a la galería y zona de lavadero. Además en esta zona hay un cuarto de servicio así como una segunda puerta de acceso a la vivienda.
Finalmente, se dispone la zona de noche con cuatro dormitorios. El dormitorio principal cuenta con acceso a la zona de la terraza, armarios empotrados y baño privado con bañera. Se ofrecen dos dormitorios dobles, uno de ellos con zona de vestidor, ambos con grandes ventanales que permiten tener una fantástica iluminación natural durante todo el día gracias a su orientación. El dormitorio individual cuenta con armario empotrado. Un segundo baño completo con plato de ducha da servicio a estas habitaciones.
Toda la vivienda consta de radiadores de gas natural y también tiene sistema de aire acondicionado por splits en la zona del salón-comedor y el dormitorio principal. Además, cuenta con armarios con gran capacidad de almacenaje en las zonas comunes como la entrada y la zona de pasillo.
La vivienda incluye una plaza para vehículo grande en el aparcamiento, con acceso desde el ascensor. También dispone de servicio de conserje de lunes a viernes.
El inmueble está listo para entrar a vivir, por lo que representa una oportunidad fantástica para familias que quieran vivir en una de las zonas más exclusivas de Valencia.
última modificació
Distribució
- 6 habitacions
- Superfície 238 m2
- 2 banys
Característiques generals
- Calefacció
- Plaça aparcament
- Aire Acondicionat
Equipament comunitari
- Ascensor
Galeria
Ubicació
Sant Francesc
