Visita virtual
Comentari guardat!
Només ho veuràs tú
Comment saved!
Afegeix la teva valoració i/o un comentari per aquest anunci. Només el veuràs tu

Lloguer pis amb calefacció a Casco Histórico de Vallecas Madrid

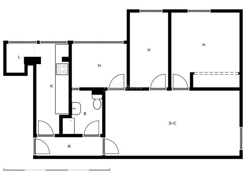
  • 63 m2
  • 4 hab.
  • 1 bany
  • 19,60 €/m2

¡ALTA DE SUMINISTROS GRATIS!


Excelente vivienda de cuatro dormitorios y un baño. Se encuentra en la 3ª planta de un edificio residencial. y cuenta con trastero. No dispone de ascensor. Situado en CASCO HISTORICO DE VALLECAS en el distrito de Villa de Vallecas.


La vivienda se distribuye en cuatro dormitorios y , armarios empotrados, salón-comedor con acceso a terraza, cocina independiente y un baño.. Cuenta con cocina amueblada y equipada con muebles altos y bajos, vitrocerámica, horno y campana extractora. Dispone de suelos de gres en cocina, baño y en el resto de estancias. Dispone de calefacción.


Se encuentra ubicado en Casco historico de Vallecas, Villa de Vallecas (Sureste de Madrid). Cuenta con fácil acceso a través de las principales carreteras y buenas comunicaciones por transporte público. La parada de metro más cercana es Villa de Vallecas y se encuentra a menos de 10 minutos andando. La parada de autobús más cercana es Real de Arganda y se encuentra a menos de 5 minutos andando. La parada de taxi más cercana se encuentra a menos de 10 minutos andando.

En su entorno existen viviendas plurifamiliares de similares características. La zona cuenta con todo tipo de servicios básicos, el centro de salud más cercano se encuentra a 380 metros, el hospital más cercano se encuentra a 110 metros, existen 3 farmacias a menos de 300 metros, existen 3 colegios a menos de 300 metros. Además, a menos de 500 metros también puedes encontrar 3 supermercados, 5 bancos, una lavandería, una oficina de correos, una comisaría de policía.

La zona cuenta con una amplia oferta de entretenimiento con un teatro, 20 parques, bares, restaurantes y comercios a pocos minutos de la vivienda.

En cuanto al transporte privado, la zona dispone de parkings privados y aparcamiento en la calle. La vivienda tiene un fácil acceso por carretera y está bien comunicado a través de la Autovia del Este, Plaza Martinez Olmedilla y la Calle Real de Arganda.


Requisitos:
- 1 mes de fianza
- Seguro del hogar a la firma del contrato.
- Antigüedad laboral ininterrumpida superior a un año.
- No aparecer en ningún fichero de morosidad.
- Disponer de una ratio de solvencia* de entre un 30% y 35% dependiendo de la zona.
*Solo se tendrán en cuenta ingresos demostrables para acreditar el ratio

última modificació

Distribució

  • 4 habitacions
  • Superfície 63 m2
  • 1 bany
  • Cuina Tipus Office: No
  • Traster

Característiques generals

  • Calefacció
  • Sense plaça aparcament
  • Sense aire acondicionat
  • Planta número 3
  • Any construcció 1965
  • Certificat energètic :
    Consumo:
    E
    52 kW h m2 / año
    Emisiones:
    E
    137 kg CO2 m2 / año

Equipament comunitari

  • Sense ascensor
Anunci: 38251000005871

Ubicació

Casco Histórico de Vallecas

Navega pel mapa fent clic a sobre
1.235 € Preu de l´anunci
38,57 €/m2€/m2 distrito
19,60 €/m2€/m2 de l´anunci
49% més econòmic que la mitja*
Quant t´agradaria pagar?
Veure evolució €/m2 a Madrid (Villa de Vallecas)
T´avisem quan tinguem un anunci com aquest? Crea la teva alerta i nosaltres t´avisarem per correu electrònic quan hi hagin nous anuncis o siguin modificats
 

Contactar Alquila Tu Hogar

Referència de l´anunci habitaclia/2001/20010001/101:

Veuràs el telèfon després d´enviar el contacte a l´anunciant perquè et pugui atendre.
Veuràs el telèfon després de contactar
Enviant…