Favorito y comentario
Masia amb piscina a Pueblo Calp
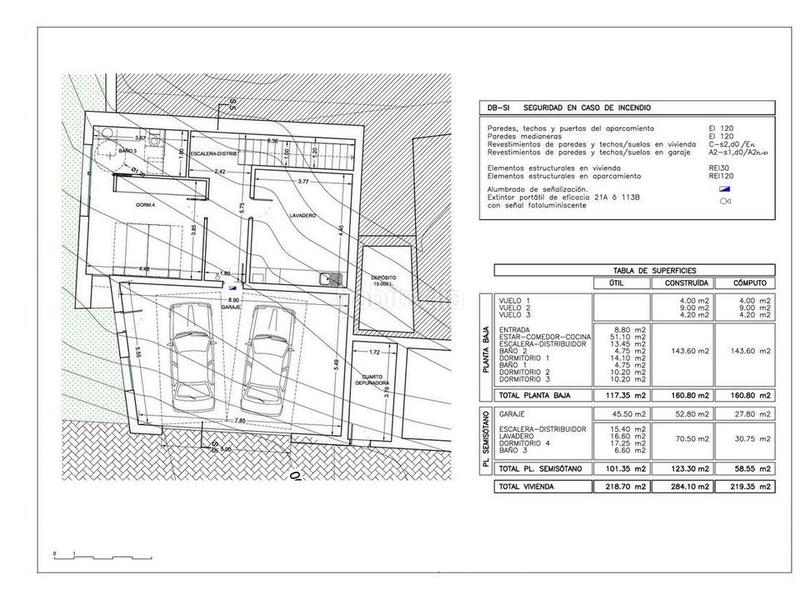
Característiques principals
- 284 m2
- 4 hab.
- 3 banys
- 4.824 €/m2
Informació detallada
Esta moderna villa de nueva construcción se encuentra en una parcela de 800 m2 en la urbanización Gran Sol a sólo 1,5 km de la hermosa costa de Benissa ya 3 km del bullicioso centro de la ciudad de Calpe. La fecha de finalización está prevista para junio de 2025 (sujeto a cambios).
La villa se distribuye en dos plantas. En la planta baja se encuentra el garaje con capacidad para 2 coches y una puerta de acceso directo al interior, donde hay un dormitorio con baño en suite y vestidor, un lavadero, un aseo y una zona de spa para la relajación y la recreación. Una escalera interior conduce a la planta superior, donde hay un hall de entrada, una moderna cocina americana totalmente equipada y un amplio salón-comedor, con acceso directo a la terraza y la piscina. Al otro lado de esta planta se encuentra la zona de noche con tres dormitorios, el principal con baño en suite y los otros dos dormitorios compartiendo un baño. Todos los dormitorios tienen acceso directo a la terraza de la piscina a través de ventanas correderas cualitativas.
La cocina está equipada con electrodomésticos de alta calidad, como horno, microondas, calientaplatos, dos frigoríficos combinados con congelador, lavavajillas y una campana extractora empotrada en el techo sobre la placa de cocción. También hay armarios del suelo al techo, cajoneras, altillos, hornacinas con iluminación LED y una isla de cocina independiente. El lavadero dispone de fregadero, lavadora, secadora, descalcificador, caldera con bomba de calor de 250 litros y depósito de inercia. Además, la villa dispone de aire acondicionado con aire caliente y frío por conductos, con termostatos independientes en cada habitación, y calefacción por suelo radiante basada en una bomba de calor de bajo consumo en toda la villa.
La villa está equipada con carpintería exterior de aluminio con interrupción de puente frío y excelente aislamiento térmico y acústico. Hay contraventanas o persianas motorizadas en los dormitorios y el acristalamiento es de vidrio de baja emisividad para un excelente aislamiento térmico, alta transmisión luminosa y protección contra la radiación solar. Las puertas interiores son de madera chapada Etimoe en la planta superior y lacadas en blanco en la planta baja, con bisagras ocultas y cerradura magnética. Los baños están equipados con sanitarios de alta calidad, duchas termostáticas con efecto lluvia y hornacinas con iluminación LED RGB. Además, la casa cuenta con preinstalación de alarma interior y exterior, iluminación y lámparas halógenas en interior y exterior, instalaciones de TV e internet en las estancias principales, sistema fotovoltaico y piscina climatizada con cubierta automática, iluminación LED RGB y bomba de calor. El jardín es de bajo mantenimiento, y el agua caliente se suministra mediante calefacción aerotérmica combinada con un panel solar. Hay dos puertas, una para peatones con video portero y otra para vehículos a motor, y el acceso al garaje y a la zona de aparcamiento está pavimentado con adoquines antideslizantes.La zona de spa cuenta con ventanas en el interior de la piscina, iluminación interior RGB y halógena, una preinstalación para un jacuzzi, un bar, una TV/bioscopio y espacio para una mesa de billar.
La villa está situada en una de las zonas residenciales más bonitas de la Costa Blanca. Las localidades de Calpe, Benissa y Moraira ofrecen un litoral excepcionalmente atractivo de gran interés paisajístico y ecológico, con una costa escarpada con numerosas playas y calas escondidas. A tan sólo 1,5 km de esta extraordinaria propiedad se encuentra la Playa de la Fustera, una playa de arena situada entre el Club Náutico Les Basetes y Cala Pinets. Esta playa cuenta con la «Bandera Azul» en reconocimiento a la calidad de sus aguas y a los numerosos servicios disponibles como paseo marítimo, senderos para caminar, acceso para minusválidos, parque infantil, instalaciones deportivas, puesto de la cruz roja, parada de autobús, aparcamiento, vigilancia marítima, cafeterías y restaurantes.
última modificació
Distribució
- 4 habitacions
- Superfície 284 m2
- Terreny 800 m2
- 3 banys
Característiques generals
- Piscina pròpia
- Sense plaça aparcament
- Sense aire acondicionat
Galeria
Ubicació
Pueblo