Comentari guardat!
Només ho veuràs tú
Comment saved!
Afegeix la teva valoració i/o un comentari per aquest anunci. Només el veuràs tu

Pis 52m2 a carrer de sardenya 14 a El Pedró Palamós

Carrer de Sardenya 14

  • des de 52 m2
  • 2 hab.
  • 2 banys
  • 6.808 €/m2
FLOR DE SARDENYA
Pertany a la promoció

FLOR DE SARDENYA

Esta promoción tiene 6 tipos de habitatges Veure promoció

ESP:

Descubre la magia de la vida en el corazón del Casco Antiguo de Palamós con nuestra espectacular nueva promoción de obra nueva. Dos imponentes bloques, 31 lujosos apartamentos y 38 plazas de aparcamiento te esperan en este rincón único de la Costa Brava. Inspirados en el estilo mediterráneo, los edificios se visten con colores claros y un diseño minimalista que se integra armoniosamente con el encanto histórico de la ciudad. Todo ello con unos acabados de una inmejorable calidad y un diseño que cuida hasta el último detalle..



Características Principales:

Ubicación Inigualable: Situados en el punto más alto del Casco Antiguo, nuestros edificios proporcionan una agradable sensación de tranquilidad i confort, en la que las viviendas dúplex dispondrán también de unas bonitas vistas a la bahía de Palamós. Con una distribución en forma de L, rodean una elegante zona comunitaria privada con piscina, zonas de sombra y jardines exquisitamente ajardinados.
Espacios Exteriores Únicos: Disfruta del sol mediterráneo durante el día en las amplias terrazas y jardines privativos de los apartamentos en planta baja. Las balconeras deslizantes de pared a pared conectan perfectamente el interior con el exterior, permitiendo que la luz natural y la brisa marina llenen tu hogar.
Diseño Interior Sofisticado: Los apartamentos y dúplex presentan amplios salones con vistas a la zona ajardinada con piscina o al mar, dormitorios dobles de superficie generosa y, en los dúplex, una vista impresionante de la bahía de Palamós y las montañas. Las cubiertas con vigas de madera natural crean una atmósfera única de confort.
Equipamiento de Calidad: Cada vivienda se entrega con una cocina totalmente equipada, incluyendo frigorífico y lavavajillas empotrados, y baños completos con muebles de diseño. La atención a los detalles garantiza que cada espacio sea funcional y elegante.
Aparcamiento y Acceso Conveniente: Amplias plazas de aparcamiento con acceso directo a las viviendas mediante

última modificació

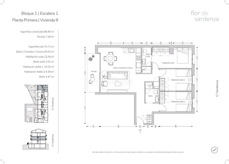
Distribució

  • 2 habitacions
  • Superfície 52 m2
  • Balcó / Terrassa 4 m2
  • 2 banys
  • Cuina Tipus Office

Característiques generals

  • Calefacció
  • Sense plaça aparcament
  • Aire Acondicionat
  • Planta número 1
  • Certificat energètic :
    Consumo:
    A
    1 kW h m2 / año
    Emisiones:
    A
    1 kg CO2 m2 / año

Equipament comunitari

  • Ascensor
  • Piscina Comunitària
Anunci: 8022004351644

Ubicació

El Pedró Carrer de Sardenya 14

Navega pel mapa fent clic a sobre
354.000 € Preu de l´anunci
3.613 €/m2€/m2 población
6.808 €/m2€/m2 de l´anunci
Veure evolució €/m2 a Palamós
T´avisem quan tinguem un anunci com aquest? Crea la teva alerta i nosaltres t´avisarem per correu electrònic quan hi hagin nous anuncis o siguin modificats
 

Pertany a la promoció FLOR DE SARDENYA

Palamós - Carrer de Sardenya, 14
Promoción FLOR DE SARDENYA Palamós - Carrer de Sardenya, 14 des de 269.000 € Veure promoció
Altres tipus d´habitatge d´aquesta promoció

Contactar NOU HABITAT

Referència de l´anunci habitaclia/11000.19:

Veuràs el telèfon després d´enviar el contacte a l´anunciant perquè et pugui atendre.
Veuràs el telèfon després de contactar
Enviant…